我局收到广东天池茶业股份有限公司新建茶叶加工厂房项目(一期)《建设工程规划许可证》(建字第4451032025GG0028540号)变更的申请及有关材料,依据《城乡规划法》、《行政许可法》等有关法律法规的规定,现进行变更前公示,内容如下:
建设单位(个人):广东天池茶业股份有限公司
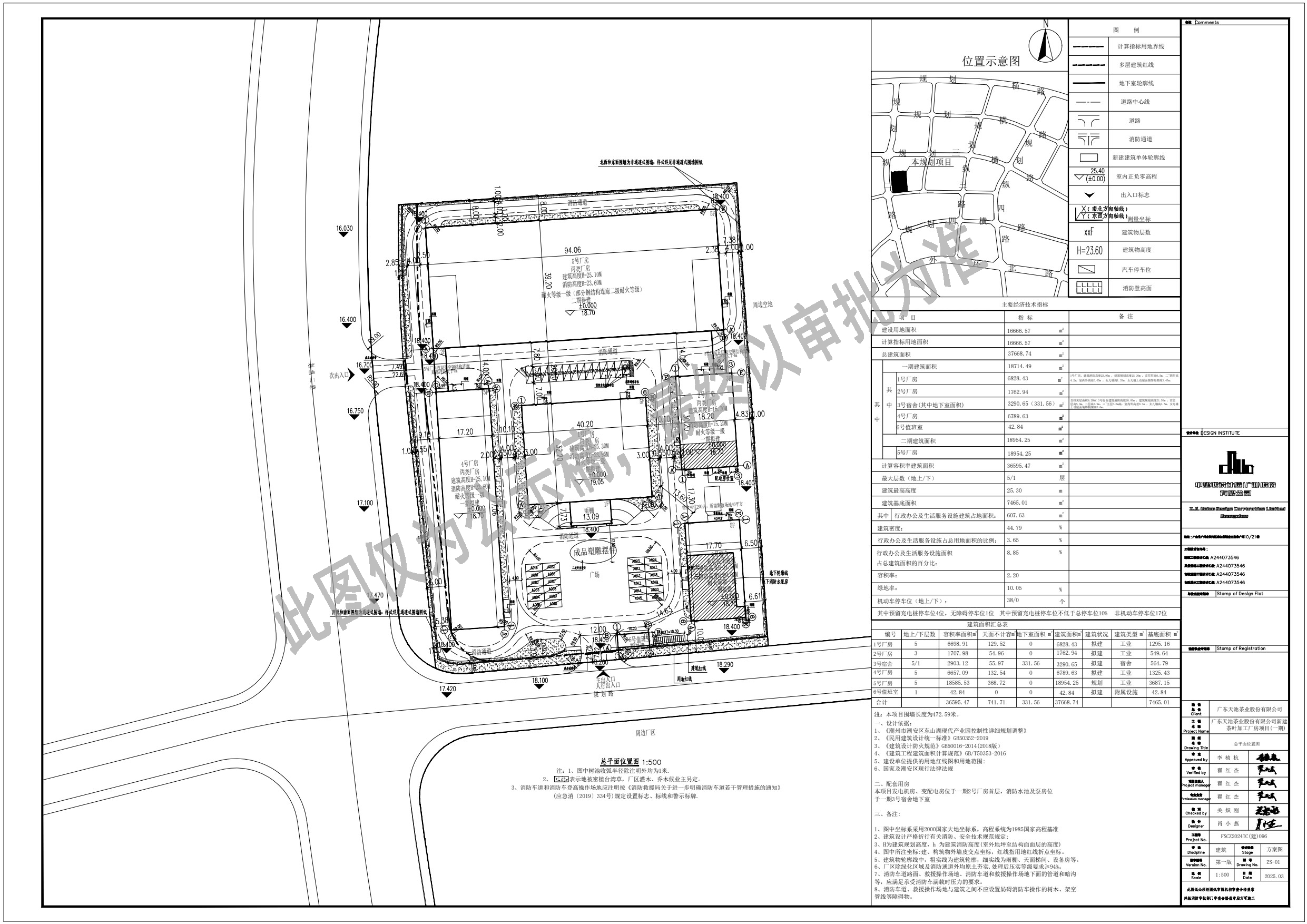
建设项目名称:广东天池茶业股份有限公司新建茶叶加工厂房项目(一期)
建设位置:潮州市潮安区大岭山产业园规划支二路与规划纵二路交界处东北侧
建设规模(变更前):一幢3层2号厂房,一幢5层4号厂房,一幢5层宿舍(设地下消防水泵房),一幢1层值班室,框架结构,建设用地面积16666.57平方米,建筑面积11886.06平方米(其中,2号厂房1762.94㎡,4号厂房6789.63㎡,宿舍3290.65㎡,值班室42.84㎡),围墙长度472.59米。
建设规模(变更后):一幢5层1号厂房,一幢3层2号厂房,一幢5层4号厂房,一幢5层宿舍(设地下消防水泵房),一幢1层值班室,框架结构,建设用地面积16666.57平方米,建筑面积18714.49平方米(其中,1号厂房6828.43㎡,2号厂房1762.94㎡,4号厂房6789.63㎡,宿舍3290.65㎡,值班室42.84㎡),围墙长度472.59米。
公示类型:变更批前公示
公示时间:2025年12月5日——2025年12月14日
有关上述项目的详细信息,可到潮州市潮安区自然资源局工程股查询。
依照《广东省城乡规划条例》等有关法律法规的规定,申请人、利害关系人对许可事项提出异议的,可在公示之日起十日内向我局提出申述(申述采用书面形式,个人申述材料应亲笔签名,并附身份证复印件及联系方式;单位申述应由法定代表人签名)。逾期未提出的,视为放弃上述权利。公示期满若无异议,我局将按程序核发《建设工程规划许可证》。
联系电话:5816982 监督电话:5818578
联系地址:潮安区城区和信街4号
潮州市潮安区自然资源局
2025年12月5日

我局收到广东天池茶业股份有限公司新建茶叶加工厂房项目(一期)《建设工程规划许可证》(建字第4451032025GG0028540号)变更的申请及有关材料,依据《城乡规划法》、《行政许可法》等有关法律法规的规定,现进行变更前公示,内容如下:
建设单位(个人):广东天池茶业股份有限公司
建设项目名称:广东天池茶业股份有限公司新建茶叶加工厂房项目(一期)
建设位置:潮州市潮安区大岭山产业园规划支二路与规划纵二路交界处东北侧
建设规模(变更前):一幢3层2号厂房,一幢5层4号厂房,一幢5层宿舍(设地下消防水泵房),一幢1层值班室,框架结构,建设用地面积16666.57平方米,建筑面积11886.06平方米(其中,2号厂房1762.94㎡,4号厂房6789.63㎡,宿舍3290.65㎡,值班室42.84㎡),围墙长度472.59米。
建设规模(变更后):一幢5层1号厂房,一幢3层2号厂房,一幢5层4号厂房,一幢5层宿舍(设地下消防水泵房),一幢1层值班室,框架结构,建设用地面积16666.57平方米,建筑面积18714.49平方米(其中,1号厂房6828.43㎡,2号厂房1762.94㎡,4号厂房6789.63㎡,宿舍3290.65㎡,值班室42.84㎡),围墙长度472.59米。
公示类型:变更批前公示
公示时间:2025年12月5日——2025年12月14日
有关上述项目的详细信息,可到潮州市潮安区自然资源局工程股查询。
依照《广东省城乡规划条例》等有关法律法规的规定,申请人、利害关系人对许可事项提出异议的,可在公示之日起十日内向我局提出申述(申述采用书面形式,个人申述材料应亲笔签名,并附身份证复印件及联系方式;单位申述应由法定代表人签名)。逾期未提出的,视为放弃上述权利。公示期满若无异议,我局将按程序核发《建设工程规划许可证》。
联系电话:5816982 监督电话:5818578
联系地址:潮安区城区和信街4号
潮州市潮安区自然资源局
2025年12月5日

我局收到广东天池茶业股份有限公司新建茶叶加工厂房项目(一期)《建设工程规划许可证》(建字第4451032025GG0028540号)变更的申请及有关材料,依据《城乡规划法》、《行政许可法》等有关法律法规的规定,现进行变更前公示,内容如下:
建设单位(个人):广东天池茶业股份有限公司
建设项目名称:广东天池茶业股份有限公司新建茶叶加工厂房项目(一期)
建设位置:潮州市潮安区大岭山产业园规划支二路与规划纵二路交界处东北侧
建设规模(变更前):一幢3层2号厂房,一幢5层4号厂房,一幢5层宿舍(设地下消防水泵房),一幢1层值班室,框架结构,建设用地面积16666.57平方米,建筑面积11886.06平方米(其中,2号厂房1762.94㎡,4号厂房6789.63㎡,宿舍3290.65㎡,值班室42.84㎡),围墙长度472.59米。
建设规模(变更后):一幢5层1号厂房,一幢3层2号厂房,一幢5层4号厂房,一幢5层宿舍(设地下消防水泵房),一幢1层值班室,框架结构,建设用地面积16666.57平方米,建筑面积18714.49平方米(其中,1号厂房6828.43㎡,2号厂房1762.94㎡,4号厂房6789.63㎡,宿舍3290.65㎡,值班室42.84㎡),围墙长度472.59米。
公示类型:变更批前公示
公示时间:2025年12月5日——2025年12月14日
有关上述项目的详细信息,可到潮州市潮安区自然资源局工程股查询。
依照《广东省城乡规划条例》等有关法律法规的规定,申请人、利害关系人对许可事项提出异议的,可在公示之日起十日内向我局提出申述(申述采用书面形式,个人申述材料应亲笔签名,并附身份证复印件及联系方式;单位申述应由法定代表人签名)。逾期未提出的,视为放弃上述权利。公示期满若无异议,我局将按程序核发《建设工程规划许可证》。
联系电话:5816982 监督电话:5818578
联系地址:潮安区城区和信街4号
潮州市潮安区自然资源局
2025年12月5日

我局收到广东天池茶业股份有限公司新建茶叶加工厂房项目(一期)《建设工程规划许可证》(建字第4451032025GG0028540号)变更的申请及有关材料,依据《城乡规划法》、《行政许可法》等有关法律法规的规定,现进行变更前公示,内容如下:
建设单位(个人):广东天池茶业股份有限公司
建设项目名称:广东天池茶业股份有限公司新建茶叶加工厂房项目(一期)
建设位置:潮州市潮安区大岭山产业园规划支二路与规划纵二路交界处东北侧
建设规模(变更前):一幢3层2号厂房,一幢5层4号厂房,一幢5层宿舍(设地下消防水泵房),一幢1层值班室,框架结构,建设用地面积16666.57平方米,建筑面积11886.06平方米(其中,2号厂房1762.94㎡,4号厂房6789.63㎡,宿舍3290.65㎡,值班室42.84㎡),围墙长度472.59米。
建设规模(变更后):一幢5层1号厂房,一幢3层2号厂房,一幢5层4号厂房,一幢5层宿舍(设地下消防水泵房),一幢1层值班室,框架结构,建设用地面积16666.57平方米,建筑面积18714.49平方米(其中,1号厂房6828.43㎡,2号厂房1762.94㎡,4号厂房6789.63㎡,宿舍3290.65㎡,值班室42.84㎡),围墙长度472.59米。
公示类型:变更批前公示
公示时间:2025年12月5日——2025年12月14日
有关上述项目的详细信息,可到潮州市潮安区自然资源局工程股查询。
依照《广东省城乡规划条例》等有关法律法规的规定,申请人、利害关系人对许可事项提出异议的,可在公示之日起十日内向我局提出申述(申述采用书面形式,个人申述材料应亲笔签名,并附身份证复印件及联系方式;单位申述应由法定代表人签名)。逾期未提出的,视为放弃上述权利。公示期满若无异议,我局将按程序核发《建设工程规划许可证》。
联系电话:5816982 监督电话:5818578
联系地址:潮安区城区和信街4号
潮州市潮安区自然资源局
2025年12月5日

我局收到广东天池茶业股份有限公司新建茶叶加工厂房项目(一期)《建设工程规划许可证》(建字第4451032025GG0028540号)变更的申请及有关材料,依据《城乡规划法》、《行政许可法》等有关法律法规的规定,现进行变更前公示,内容如下:
建设单位(个人):广东天池茶业股份有限公司
建设项目名称:广东天池茶业股份有限公司新建茶叶加工厂房项目(一期)
建设位置:潮州市潮安区大岭山产业园规划支二路与规划纵二路交界处东北侧
建设规模(变更前):一幢3层2号厂房,一幢5层4号厂房,一幢5层宿舍(设地下消防水泵房),一幢1层值班室,框架结构,建设用地面积16666.57平方米,建筑面积11886.06平方米(其中,2号厂房1762.94㎡,4号厂房6789.63㎡,宿舍3290.65㎡,值班室42.84㎡),围墙长度472.59米。
建设规模(变更后):一幢5层1号厂房,一幢3层2号厂房,一幢5层4号厂房,一幢5层宿舍(设地下消防水泵房),一幢1层值班室,框架结构,建设用地面积16666.57平方米,建筑面积18714.49平方米(其中,1号厂房6828.43㎡,2号厂房1762.94㎡,4号厂房6789.63㎡,宿舍3290.65㎡,值班室42.84㎡),围墙长度472.59米。
公示类型:变更批前公示
公示时间:2025年12月5日——2025年12月14日
有关上述项目的详细信息,可到潮州市潮安区自然资源局工程股查询。
依照《广东省城乡规划条例》等有关法律法规的规定,申请人、利害关系人对许可事项提出异议的,可在公示之日起十日内向我局提出申述(申述采用书面形式,个人申述材料应亲笔签名,并附身份证复印件及联系方式;单位申述应由法定代表人签名)。逾期未提出的,视为放弃上述权利。公示期满若无异议,我局将按程序核发《建设工程规划许可证》。
联系电话:5816982 监督电话:5818578
联系地址:潮安区城区和信街4号
潮州市潮安区自然资源局
2025年12月5日

我局收到广东天池茶业股份有限公司新建茶叶加工厂房项目(一期)《建设工程规划许可证》(建字第4451032025GG0028540号)变更的申请及有关材料,依据《城乡规划法》、《行政许可法》等有关法律法规的规定,现进行变更前公示,内容如下:
建设单位(个人):广东天池茶业股份有限公司
建设项目名称:广东天池茶业股份有限公司新建茶叶加工厂房项目(一期)
建设位置:潮州市潮安区大岭山产业园规划支二路与规划纵二路交界处东北侧
建设规模(变更前):一幢3层2号厂房,一幢5层4号厂房,一幢5层宿舍(设地下消防水泵房),一幢1层值班室,框架结构,建设用地面积16666.57平方米,建筑面积11886.06平方米(其中,2号厂房1762.94㎡,4号厂房6789.63㎡,宿舍3290.65㎡,值班室42.84㎡),围墙长度472.59米。
建设规模(变更后):一幢5层1号厂房,一幢3层2号厂房,一幢5层4号厂房,一幢5层宿舍(设地下消防水泵房),一幢1层值班室,框架结构,建设用地面积16666.57平方米,建筑面积18714.49平方米(其中,1号厂房6828.43㎡,2号厂房1762.94㎡,4号厂房6789.63㎡,宿舍3290.65㎡,值班室42.84㎡),围墙长度472.59米。
公示类型:变更批前公示
公示时间:2025年12月5日——2025年12月14日
有关上述项目的详细信息,可到潮州市潮安区自然资源局工程股查询。
依照《广东省城乡规划条例》等有关法律法规的规定,申请人、利害关系人对许可事项提出异议的,可在公示之日起十日内向我局提出申述(申述采用书面形式,个人申述材料应亲笔签名,并附身份证复印件及联系方式;单位申述应由法定代表人签名)。逾期未提出的,视为放弃上述权利。公示期满若无异议,我局将按程序核发《建设工程规划许可证》。
联系电话:5816982 监督电话:5818578
联系地址:潮安区城区和信街4号
潮州市潮安区自然资源局
2025年12月5日

我局收到广东天池茶业股份有限公司新建茶叶加工厂房项目(一期)《建设工程规划许可证》(建字第4451032025GG0028540号)变更的申请及有关材料,依据《城乡规划法》、《行政许可法》等有关法律法规的规定,现进行变更前公示,内容如下:
建设单位(个人):广东天池茶业股份有限公司
建设项目名称:广东天池茶业股份有限公司新建茶叶加工厂房项目(一期)
建设位置:潮州市潮安区大岭山产业园规划支二路与规划纵二路交界处东北侧
建设规模(变更前):一幢3层2号厂房,一幢5层4号厂房,一幢5层宿舍(设地下消防水泵房),一幢1层值班室,框架结构,建设用地面积16666.57平方米,建筑面积11886.06平方米(其中,2号厂房1762.94㎡,4号厂房6789.63㎡,宿舍3290.65㎡,值班室42.84㎡),围墙长度472.59米。
建设规模(变更后):一幢5层1号厂房,一幢3层2号厂房,一幢5层4号厂房,一幢5层宿舍(设地下消防水泵房),一幢1层值班室,框架结构,建设用地面积16666.57平方米,建筑面积18714.49平方米(其中,1号厂房6828.43㎡,2号厂房1762.94㎡,4号厂房6789.63㎡,宿舍3290.65㎡,值班室42.84㎡),围墙长度472.59米。
公示类型:变更批前公示
公示时间:2025年12月5日——2025年12月14日
有关上述项目的详细信息,可到潮州市潮安区自然资源局工程股查询。
依照《广东省城乡规划条例》等有关法律法规的规定,申请人、利害关系人对许可事项提出异议的,可在公示之日起十日内向我局提出申述(申述采用书面形式,个人申述材料应亲笔签名,并附身份证复印件及联系方式;单位申述应由法定代表人签名)。逾期未提出的,视为放弃上述权利。公示期满若无异议,我局将按程序核发《建设工程规划许可证》。
联系电话:5816982 监督电话:5818578
联系地址:潮安区城区和信街4号
潮州市潮安区自然资源局
2025年12月5日

我局收到广东天池茶业股份有限公司新建茶叶加工厂房项目(一期)《建设工程规划许可证》(建字第4451032025GG0028540号)变更的申请及有关材料,依据《城乡规划法》、《行政许可法》等有关法律法规的规定,现进行变更前公示,内容如下:
建设单位(个人):广东天池茶业股份有限公司
建设项目名称:广东天池茶业股份有限公司新建茶叶加工厂房项目(一期)
建设位置:潮州市潮安区大岭山产业园规划支二路与规划纵二路交界处东北侧
建设规模(变更前):一幢3层2号厂房,一幢5层4号厂房,一幢5层宿舍(设地下消防水泵房),一幢1层值班室,框架结构,建设用地面积16666.57平方米,建筑面积11886.06平方米(其中,2号厂房1762.94㎡,4号厂房6789.63㎡,宿舍3290.65㎡,值班室42.84㎡),围墙长度472.59米。
建设规模(变更后):一幢5层1号厂房,一幢3层2号厂房,一幢5层4号厂房,一幢5层宿舍(设地下消防水泵房),一幢1层值班室,框架结构,建设用地面积16666.57平方米,建筑面积18714.49平方米(其中,1号厂房6828.43㎡,2号厂房1762.94㎡,4号厂房6789.63㎡,宿舍3290.65㎡,值班室42.84㎡),围墙长度472.59米。
公示类型:变更批前公示
公示时间:2025年12月5日——2025年12月14日
有关上述项目的详细信息,可到潮州市潮安区自然资源局工程股查询。
依照《广东省城乡规划条例》等有关法律法规的规定,申请人、利害关系人对许可事项提出异议的,可在公示之日起十日内向我局提出申述(申述采用书面形式,个人申述材料应亲笔签名,并附身份证复印件及联系方式;单位申述应由法定代表人签名)。逾期未提出的,视为放弃上述权利。公示期满若无异议,我局将按程序核发《建设工程规划许可证》。
联系电话:5816982 监督电话:5818578
联系地址:潮安区城区和信街4号
潮州市潮安区自然资源局
2025年12月5日



Copyright © 2015-2025
— 潮州市精选文化传媒有限公司 —
粤ICP备15052460号-9
粤公网安备44510302000286号
地址:潮州市池湖福新一街3号3幢综合楼第五层 EMAIL:4270700@qq.com
ICP经营许可证:粤B2-20210701 人力资源证: 445140200001
Powered by PHPYun.